Um projeto de arquitetura moderna que se destaca pelo design atemporal e inteligente. Seus espaços amplos e versáteis podem ser subdivididos, garantindo privacidade e conforto para múltiplos usos.

Este projeto representa o equilíbrio perfeito entre modernidade e funcionalidade. A arquitetura contemporânea se expressa através de volumes limpos e integração com o paisagismo, criando uma residência elegante e sofisticada.
Os espaços foram projetados com flexibilidade em mente, permitindo que os ambientes se adaptem às necessidades dos moradores ao longo do tempo. A distribuição inteligente garante privacidade nas áreas íntimas enquanto promove integração nas áreas sociais.
Com deck removível, piscina e áreas de lazer no pavimento superior, o projeto oferece múltiplas possibilidades de uso e contemplação, aproveitando ao máximo o terreno disponível.

Vista Externa Principal
Fachada frontal mostrando volumes contemporâneos e integração com paisagismo

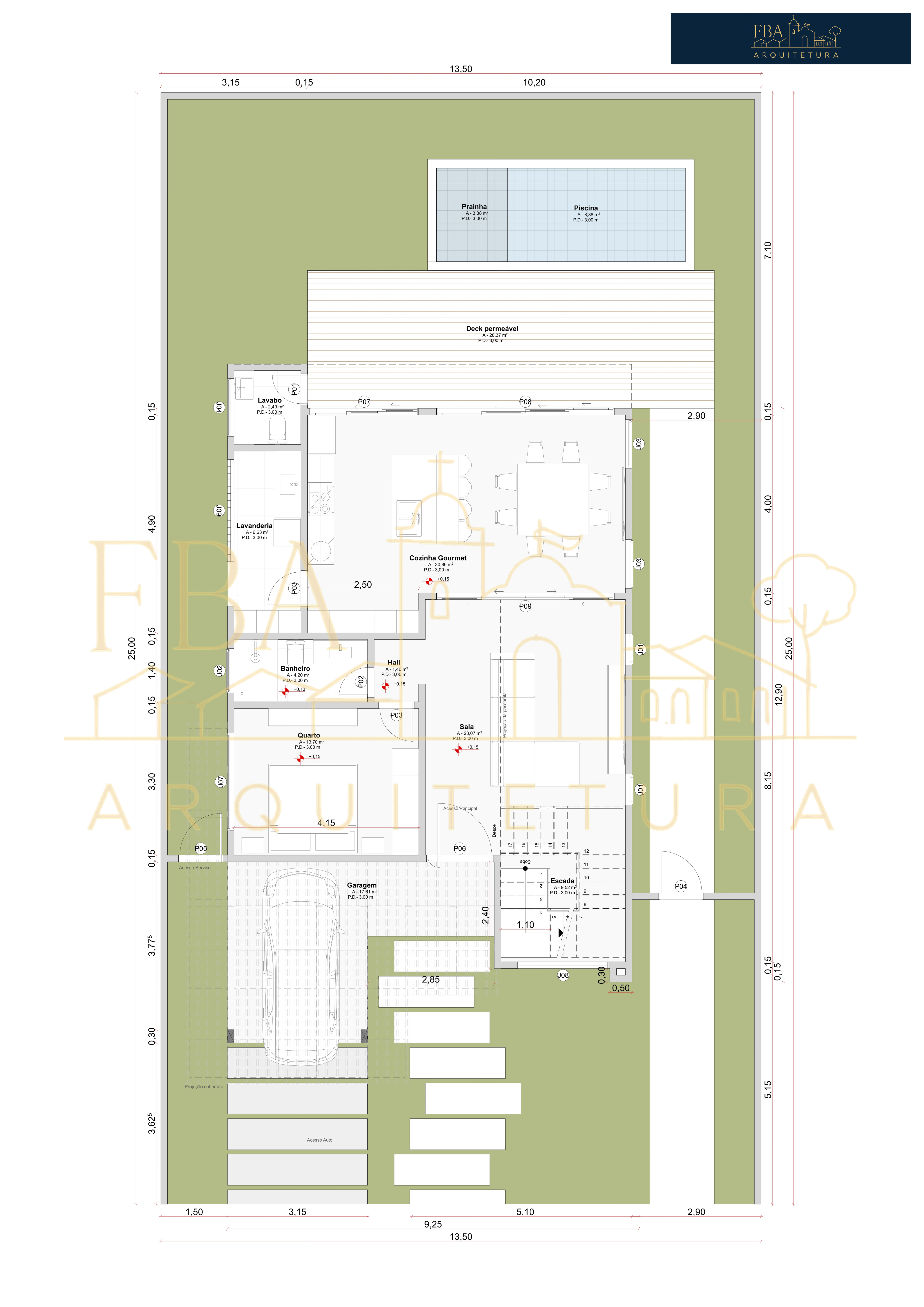
Planta Pavimento Térreo
Cozinha gourmet, lavabo, deck removível, piscina e paisagismo integrado

Planta Pavimento Superior
Suíte master, closet, banheiros e áreas íntimas com privacidade

Planta de Implantação e Cobertura
Terraços cobertos, deck removível e distribuição dos espaços no terreno

Prancha Técnica Completa
Plantas, cortes, elevações, implantação e renderizações do projeto
Entre em contato agora e vamos conversar sobre como podemos transformar seu espaço em realidade.
Conversar no WhatsApp