Um projeto que une o contemporâneo e o colonial para criar o lar brasileiro ideal. Com conceito aberto e amplitude, integra sala, cozinha e um espaço gourmet, refletindo o nosso jeito de viver e receber bem.

Esta residência foi desenvolvida para uma família que buscava unir a elegância do contemporâneo com o acolhimento da arquitetura colonial brasileira. O resultado é um projeto que respira brasilidade enquanto oferece todo o conforto e funcionalidade modernos.
O conceito de planta aberta integra perfeitamente os ambientes sociais - sala de estar, jantar, cozinha e área gourmet se conectam de forma fluida, criando um espaço perfeito para o convívio familiar e para receber amigos.
Elementos em madeira, telhado colonial, varandas amplas e jardins integrados completam a composição, trazendo charme e personalidade ao projeto.

Vista Externa Principal
Fachada frontal mostrando integração entre elementos contemporâneos e coloniais

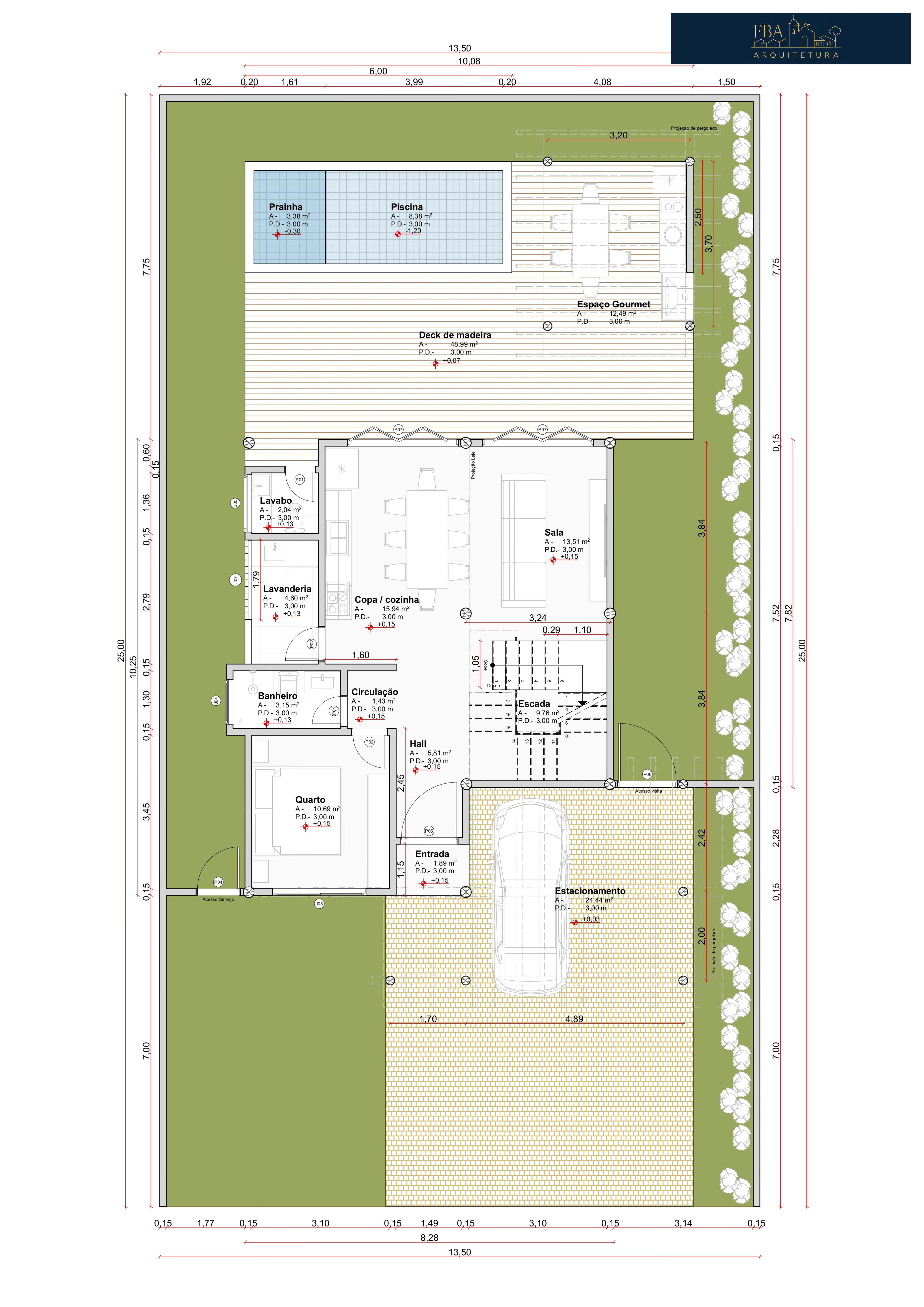
Planta Térreo
Sala integrada, cozinha, área gourmet, piscina e prainha

Pavimento Superior
Distribuição das suítes e áreas íntimas

Planta de Cobertura
Vista superior com layout do telhado e implantação

Prancha Técnica Completa
Plantas, cortes, elevações e detalhamento do projeto
Entre em contato agora e vamos conversar sobre como podemos transformar seu espaço em realidade.
Conversar no WhatsApp