Projetada para um terreno em declive, esta casa privilegia a vista dos fundos. O acesso superior leva à área íntima e social no pavimento de baixo, criando um refúgio perfeitamente integrado à natureza.

Este projeto foi desenvolvido especialmente para um terreno com declive acentuado, transformando o que muitos veriam como uma limitação em uma grande oportunidade arquitetônica. A casa foi estrategicamente posicionada para aproveitar ao máximo a vista panorâmica dos fundos do lote.
O acesso principal acontece pelo pavimento superior, onde estão localizadas as áreas íntimas. Descendo ao nível inferior, encontramos a área social completamente integrada à natureza, com grandes aberturas que conectam o interior ao deck e à piscina, aproveitando a vista privilegiada.
A arquitetura dialoga perfeitamente com a topografia, criando diferentes níveis de privacidade e contemplação, sempre respeitando e valorizando o entorno natural.

Vista Externa Principal
Fachada mostrando como a arquitetura se integra ao terreno em declive

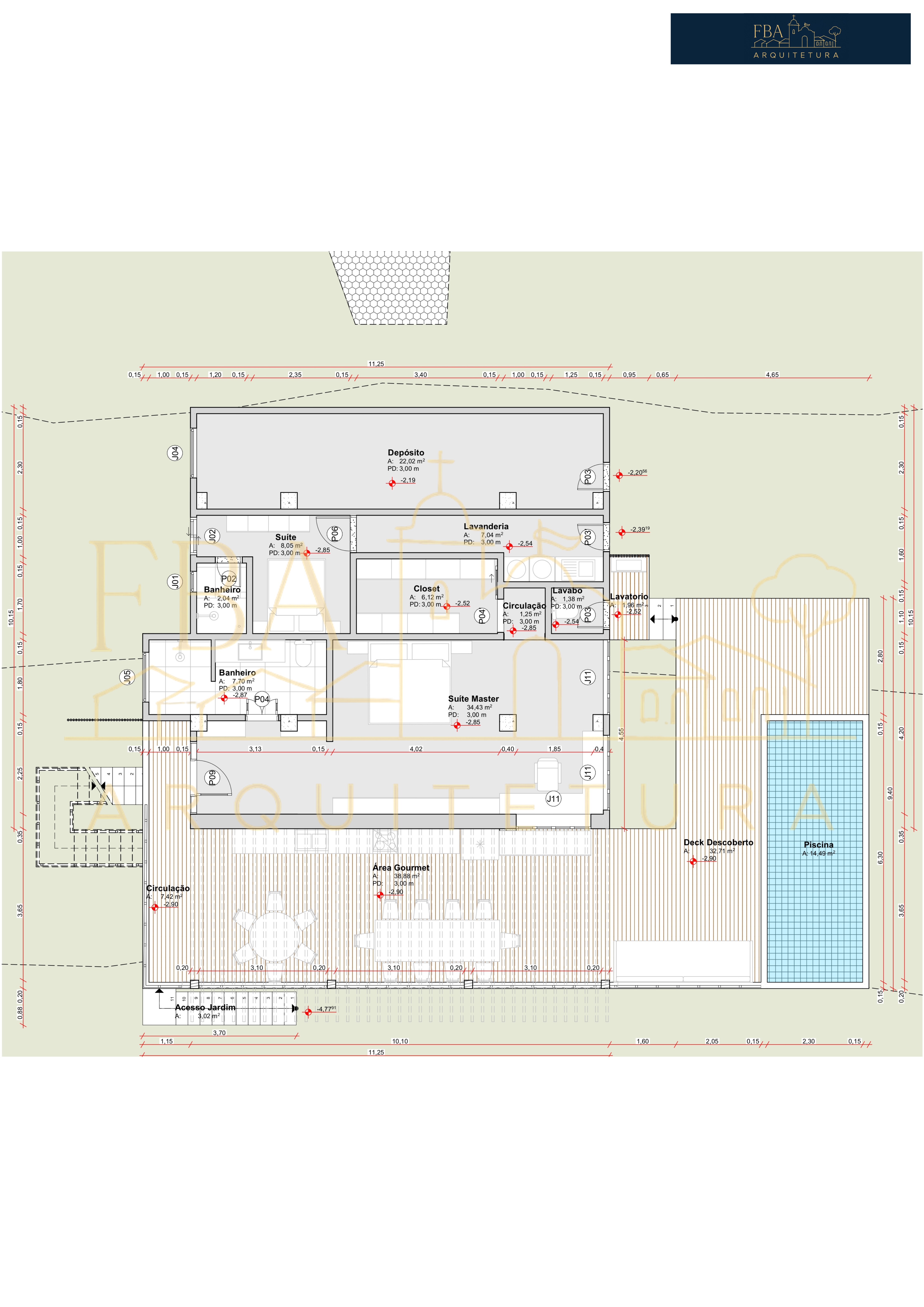
Planta Pavimento Social
Área social integrada com vista, deck e piscina

Planta Pavimento Íntimo
Distribuição das suítes no pavimento superior

Planta de Cobertura
Vista superior com layout do telhado e implantação

Prancha Técnica Completa
Plantas, cortes, elevações e detalhamento do projeto
Podemos transformar o que parece um desafio em um projeto único e valorizado. Vamos conversar sobre o seu terreno.
Conversar no WhatsApp